Sale
1651 sqft Penta Squre Apartment in DHA Lahore Digital Auction 2025
Lahore Society DHA Phase 5 Block AContact
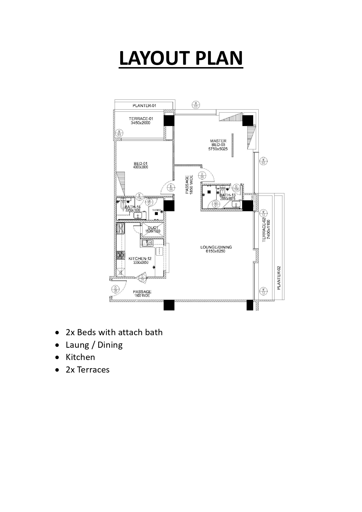
- Bedrooms: 2 Beds
- Square: 1,651 ft2
- Floors:5
- Property Type:Apartment
- Property ID:127785
1651 sqft Penta Squre Apartment in DHA Lahore Digital Auction 2025
Apartment Details: Sector A,Floor 5,Bedroom 2,Facing F Block and Green
Apartment Price: (Auction - 2nd September 2025)
25% Down Payment:
Balance Amount in 1 Year:
Lump Sump Payment (10% Discount):
Apartment Details: Sector A,Floor 5,Bedroom 2,Facing F Block and Green
Apartment Price: (Auction - 2nd September 2025)
25% Down Payment:
Balance Amount in 1 Year:
Lump Sump Payment (10% Discount):
- Wifi
- Parking
- Swimming pool
- Balcony
- Garden
- Security
- Fitness center
- Air Conditioning
- Central Heating
- Laundry Room
- Pets Allow
- Spa & Massage
- Electricity Backup
- Dining Room
- Study Room
- Drawing Room
- Kitchen
- Store Room
Lahore Society DHA Phase 5 Block A, Lahore


